出售厂房,有产权、能贷款、给办证照,北京周边
出售
价格
4700
元/㎡
物业类型:
厂房
面积:
1380
电话
13810221014
联系我时,说是在中国产业园网上看到的,谢谢!
留言咨询

预约咨询
园区招商人员专业解答
项目介绍
永清县位于廊坊和固安的中间位置,距离北京60公里,天津60公里,雄安新区60公里,大兴国际机场20公里,处于空港经济圈范围内,地理位置得天独厚。
现有高速为G3京台高速,出口距离项目仅4公里;轨道交通有2条在建,一是天津西站到大兴机场高铁站在永清境内,距离项目2公里;二是京雄城际轻轨在永清有站,站点距离项目10公里;要想富先修路,是国民早就熟知的经济法则,通达的交通是永清未来发展的双翅,也是企业投资的风向标。
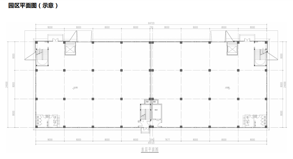
【产品】生产办公研发一体化,首层7.2 米超高层高,满足生产需求,8米宽阔柱距,首层双入口,人货分流。
【户型】独栋联排双拼三拼 ,1400−4800㎡
【层高】首层挑高7.2米,二层4.2米,三层3.9米,四层3.6米,赠送露台
【承重】首层承重3吨/㎡,二层承重450公斤/㎡(特殊需求可定制)
【年限】大产权50年,有土地证,可注册环评
【运营】以基础服务、金融服务、产业融资为核心的三位一体的八大运营服务体系
【价格】整盘均价4700元/㎡
【付款】全款,分期,按揭
现有高速为G3京台高速,出口距离项目仅4公里;轨道交通有2条在建,一是天津西站到大兴机场高铁站在永清境内,距离项目2公里;二是京雄城际轻轨在永清有站,站点距离项目10公里;要想富先修路,是国民早就熟知的经济法则,通达的交通是永清未来发展的双翅,也是企业投资的风向标。
【产品】生产办公研发一体化,首层7.2 米超高层高,满足生产需求,8米宽阔柱距,首层双入口,人货分流。
【户型】独栋联排双拼三拼 ,1400−4800㎡
【层高】首层挑高7.2米,二层4.2米,三层3.9米,四层3.6米,赠送露台
【承重】首层承重3吨/㎡,二层承重450公斤/㎡(特殊需求可定制)
【年限】大产权50年,有土地证,可注册环评
【运营】以基础服务、金融服务、产业融资为核心的三位一体的八大运营服务体系
【价格】整盘均价4700元/㎡
【付款】全款,分期,按揭
地图
客服热线:400-6366558转0
津ICP备2020006662号-3 园区云招商 版权所有 部分文章为本站原创,未经许可,禁止转载!