北京周边正规产业园区,有手续,可生产
出售
价格
4800
元/㎡
物业类型:
厂房
面积:
2000
电话
13810221014
联系我时,说是在中国产业园网上看到的,谢谢!
留言咨询

预约咨询
园区招商人员专业解答
项目介绍
【案名】中南高科永清创智云谷
【区位】项目所在地永清位于京津雄中心位置,距离大兴国际机场仅为20公里左右,随着大兴国际机场的正式运营,区位优势更加凸显。
【规划】项目总规划500亩,其中首期占地188亩,总建筑面积22万㎡;园区整体规划以3层半丁类厂房为主要建筑形态。
【交通】项目周边便捷的公路、四纵两横(京台、机场、京沪、大广;两横:廊涿、廊沧)高速网;计2022年通车的天津至大兴国际机场联络线也会在永清设立永清南站,以及长远规划的北京地铁R4延长线也将设立永清北站,距离我们项目均为4公里左右,立体化交通体系,大大缩短永清与北京交通距离,实现半小时北京经济生活圈的路网支撑,并加快永清与北京的城市融合,为产业发展提速。
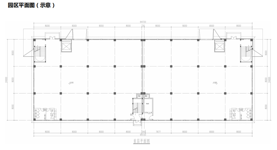
【产品】生产办公研发一体化,首层7.2 米超高层高,满足生产需求,8米宽阔柱距,首层双入口,人货分流。
【户型】独栋联排双拼三拼 ,1400-4800㎡
【层高】首层挑高7.2米,二层4.2米,三层3.9米,四层3.6米,赠送露台
【承重】首层承重3吨/㎡,二层承重450公斤/㎡(特殊需求可定制)
【年限】大产权50年,有土地证,可注册环评
【运营】以基础服务、金融服务、产业融资为核心的三位一体的八大运营服务体系
【价格】整盘均价4800元/㎡
【付款】全款,分期,按揭
【区位】项目所在地永清位于京津雄中心位置,距离大兴国际机场仅为20公里左右,随着大兴国际机场的正式运营,区位优势更加凸显。
【规划】项目总规划500亩,其中首期占地188亩,总建筑面积22万㎡;园区整体规划以3层半丁类厂房为主要建筑形态。
【交通】项目周边便捷的公路、四纵两横(京台、机场、京沪、大广;两横:廊涿、廊沧)高速网;计2022年通车的天津至大兴国际机场联络线也会在永清设立永清南站,以及长远规划的北京地铁R4延长线也将设立永清北站,距离我们项目均为4公里左右,立体化交通体系,大大缩短永清与北京交通距离,实现半小时北京经济生活圈的路网支撑,并加快永清与北京的城市融合,为产业发展提速。
【产品】生产办公研发一体化,首层7.2 米超高层高,满足生产需求,8米宽阔柱距,首层双入口,人货分流。
【户型】独栋联排双拼三拼 ,1400-4800㎡
【层高】首层挑高7.2米,二层4.2米,三层3.9米,四层3.6米,赠送露台
【承重】首层承重3吨/㎡,二层承重450公斤/㎡(特殊需求可定制)
【年限】大产权50年,有土地证,可注册环评
【运营】以基础服务、金融服务、产业融资为核心的三位一体的八大运营服务体系
【价格】整盘均价4800元/㎡
【付款】全款,分期,按揭
地图
客服热线:400-6366558转0
津ICP备2020006662号-3 园区云招商 版权所有 部分文章为本站原创,未经许可,禁止转载!